• $799,000List Price
  • ActiveStatus
  • 48Number of Photos
  • 27.513026Latitude
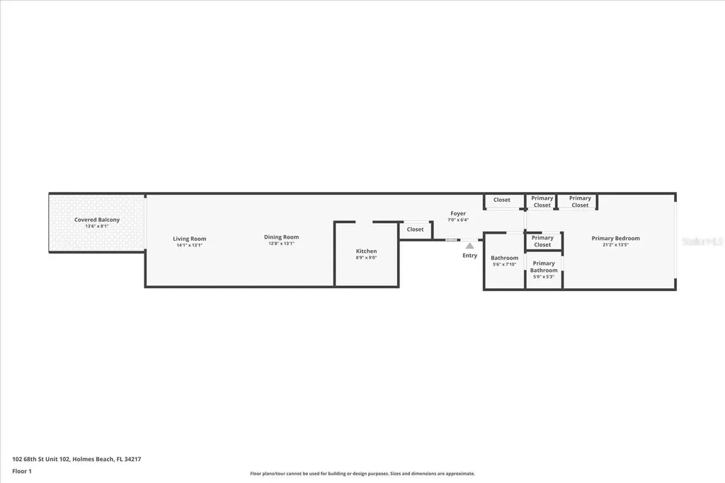
  • 102 68th StreetAddress
  • 68TH StreetStreet
  • 102Unit Number
  • Holmes BeachTown
  • FLState
  • 34217Zip
  • ManateeCounty
  • ResidentialProperty Type
  • A4675905MLS Number
  • 1Bedrooms
  • 2Full Bath
  • 986Square Feet
  • 1977Year Built
  • 0.5Acreage

Listing Tools

Wake up to endless Gulf views in this stunning 1-bedroom, full Gulf-front condo, perfectly positioned in an exclusive boutique building of just 10 residences. Floor-to-ceiling vistas of sugar-white sand and emerald waters create a front-row seat to breathtaking sunrises, sunsets, and the soothing rhythm of the waves. This well-maintained beachfront condominium offers the rare combination of privacy, peace of mind, and investment potential. Owners enjoy a large beachfront pool, strong financial reserves, and a pride of ownership that's evident throughout the property. Located directly on the beach, this residence also features weekly rental flexibility, making it an exceptional opportunity for those seeking both personal enjoyment and strong short-term rental income. Whether you're looking for a serene coastal retreat or a proven investment in a high-demand rental market, this Gulf-front gem delivers on every level. Boutique. Beachfront. Income-producing. This is coastal living at its finest. This property is a weekly rental. AC is 2023.

Location

Listings courtesy of StellarMLS as distributed by MLS GRID. Based on information submitted to the MLS GRID as of February 14, 2026 11:02 PM EST. All data is obtained from various sources and may not have been verified by broker or MLS GRID. Supplied Open House Information is subject to change without notice. All information should be independently reviewed and verified for accuracy. Properties may or may not be listed by the office/agent presenting the information. IDX information is provided exclusively for consumers’ personal noncommercial use and may not be used for any purpose other than to identify prospective properties consumers may be interested in purchasing. The data is deemed reliable but is not guaranteed by MLS GRID. The use of the MLS GRID Data may be subject to an end user license agreement.

Hi there! How can we help you?

Contact us using the form below or give us a call.

Send Us A Message:

By submitting this form I agree to receive marketing and customer service calls and text messages from Michael Saunders & Company. To opt out, you can reply 'stop' at any time or click the unsubscribe link in the emails. Consent is not a condition of purchase. Msg/data rates may apply. Msg frequency varies. Privacy Policy.

Do not fill in this field:

This site is protected by reCAPTCHA and the Google Privacy Policy and Terms of Service apply.

Hi there! How can we help you?

Contact us using the form below or give us a call.

Send Us A Message:

Do not fill in this field:

This site is protected by reCAPTCHA and the Google Privacy Policy and Terms of Service apply.

Hi there! How can we help you?

Contact us using the form below or give us a call.

Send Us A Message:

Do not fill in this field:

This site is protected by reCAPTCHA and the Google Privacy Policy and Terms of Service apply.

Do not fill in this field:

This site is protected by reCAPTCHA and the Google Privacy Policy and Terms of Service apply.

Do not fill in this field:

This site is protected by reCAPTCHA and the Google Privacy Policy and Terms of Service apply.

Do not fill in this field:

This site is protected by reCAPTCHA and the Google Privacy Policy and Terms of Service apply.

$

Do not fill in this field:

This site is protected by reCAPTCHA and the Google Privacy Policy and Terms of Service apply.